深圳市龍崗區布吉街道三好汽配經營部“8·9”較大火災事故調查報告
2019年8月9日12時31分,位于深圳市龍崗區布吉街道信義假日名城博雅園4棟S89號三好汽配經營部發生一起火災事故,過火面積約100平方米,造成4人死亡。
一、事故基本情況
(一)涉事小區基本情況。
1.信義假日名城。位于龍崗區布吉街道禾坑路與榮華路交匯處,開發商為深圳市信義控股集團有限公司(原深圳市信義房地產開發有限公司),開發時間:2002年—2008年,小區包括:一期沁芳園、二期博雅園、三期菁華園、五期逸翠園和山翠居、六期溢芳園,總占地面積15.2萬平方米,總建筑面積37.3萬平方米,總戶數3122戶,建筑結構為多層磚混和高層框架。小區物業管理由深圳市核電物業有限公司信義假日名城管理處(以下簡稱“信義管理處”)負責。
2.博雅園。位于布吉街道百鴿路295號,為多層(1、2棟)和中高層(3、4、5棟)建筑,占地面積3.2萬平方米,建筑面積6.7萬平方米,住宅750戶,商鋪93戶。其中4棟為高層建筑(18層),住宅323戶,商鋪26戶(編號:S65-S90),4棟建筑主體于2003年7月經驗收合格取得《建設工程消防驗收意見書》〔深公龍消建(2003)驗字第619號〕。博雅園臨街商鋪前6.05米紅線范圍公共區域管理由信義管理處負責(見圖1、圖2)。


事故發生地點為信義假日名城二期博雅園4棟S89號臨街商鋪。該商鋪屬于“三小”場所1。
(二)事故商鋪建筑物相關情況。
1.商鋪建筑物情況。S89商鋪建筑面積為76.86平方米,東南朝向,面向榮華路,建筑長寬高分別為12米×5.4米×4.6米,呈長方形,商鋪內墻4.3米高的位置并列設有一個長4米、寬0.45米的透光窗和一個長0.75米、寬0.45米的逃生窗,鋼筋混凝土結構,竣工時間為2003年8月12日。
2.商鋪業主及房產證信息。
S89商鋪業主。楊燕紅(女,58歲,漢族,北京西城區人),100%產權,購買時間為2003年5月22日,登記入住時間為2003年9月8日。
房產證信息。房產證名稱:信義假日名城博雅園4棟S89;建筑面積:76.86平方米;套內建筑面積:73.2平方米;用途:商業金融業;竣工日期:2003年8月12日;登記價:人民幣1108400元;房產證登記日期:2003年12月24日;使用年限:70年。
?。ㄈ┦鹿氏嚓P單位情況。
1.事發單位情況。
深圳市龍崗區布吉街道三好汽配經營部(以下簡稱“三好汽配經營部”)。類型:個體工商戶;統一社會信用代碼:92440300L069362915;經營者:華小兵(男,51歲,漢族,湖北浠水人);成立日期:2004年4月16日;注冊資金:30000元人民幣;經營場所:深圳市龍崗區布吉街道信義假日名城博雅園四棟一樓S89號(見圖3)。

汽修工2人,分別為李新添(男,36歲,漢族,廣東梅縣人,2019年7月入職)和陳杰(男,22歲,漢族,湖北浠水人,2018年9月入職)。
2.相關單位情況。
(1)物業管理公司。
深圳市核電物業有限公司。曾用名:深圳市核電科達物業有限公司,信義假日名城物業管理服務方,深圳市物業管理行業協會會員。公司類型:有限責任公司(法人獨資);住所:深圳市福田區深南中路核電大廈19—20樓;法定代表人:高翔;成立日期:1998年5月27日;統一社會信用代碼:91440300708411171Q;組織機構代碼:708411171;注冊資本:1400萬元人民幣;經營范圍:物業管理、房屋租賃、國內貿易等;有效期至2020年5月27日。
?。?)物業管理處。
深圳市核電物業有限公司信義假日名城管理處。主體類型:有限責任公司分公司;統一社會信用代碼:91440300755656833J;經營場所:深圳市龍崗區布吉街道羅崗路信義假日名城沁芳園G103、G104、G203;負責人:周德華;成立日期:2003年10月20日。信義管理處為深圳市核電物業有限公司分公司。管理處主任:周德華(男,43歲,漢族,四川廣安人,2012年9月起任信義管理處主任)全面負責小區物業管理工作。安全主任:林勇杰(男,37歲,漢族,陜西渭南人,2019年1月起任信義管理處安全主任),負責信義管理處安全管理工作。
?。ㄋ模┖贤炗喦闆r。
1.物業管理合同。2007年7月3日,深圳市信義房地產開發有限公司(以下簡稱:信義地產)與深圳市核電物業有限公司簽訂《信義假日名城物業管理服務合同》,合同期限:2007年7月28日起至業委會成立(無固定期限);管理范圍:信義假日名城1—6期;商鋪管理費:2.5元每平方米。
2010年,因深圳市核電物業有限公司申辦一級資質,雙方補簽合同,明確合同期限:2007年7月28日至2012年7月27日。
2015年,因復審資質,雙方再次簽訂合同,合同期限:2015年5月28日至2020年5月27日。
2.商鋪租賃合同。2003年,楊燕紅購買的商鋪由開發商包租。2004年,華小兵以每月3000元價格租下,雙方辦理了租賃合同和備案手續。
2013年,商鋪租金上漲至每月5000元,雙方重簽了租賃合同,并于10月14日在龍崗區房屋租賃管理部門辦理了《房屋租賃憑證》(登記備案號為龍A0027029),租賃期限:2013年6月7日至2023年12月31日,用途為商業。至事故發生前,雙方對續租時間和租金進行了4次續簽和變更備案。事發時商鋪租金為每月10000元。
?。ㄎ澹龤к囕v基本情況。
燒毀車輛:銀色五菱宏光面包車;車牌號:粵B84278;車型:五菱牌LZW6431MF;注冊日期:2013年4月19日;購入價:76000元;油箱容積:50升。自購買之日起,車輛每年2次的常規保養及其他維修項目均在三好汽配經營部進行。
車主:牛鋼占,男,48歲,漢族,河南西華人。
二、事故發生經過、應急救援及善后處理情況
?。ㄒ唬┦鹿拾l生經過。
1.事發前相關人員活動情況。監控視頻顯示:8月9日9時35分,華佳齡(12歲,華小兵女兒)身穿米黃色連衣裙,肩背紅色書包,舉傘進入三好汽配經營部。事發時,華佳齡在三好汽配經營部辦公休息區內寫作業。
9時39分,袁紅霞(華小兵妻子)身穿褐色上衣,黑色長褲,肩掛隨身包,舉傘進入三好汽配經營部。期間,袁紅霞多次出入。11時58分,袁紅霞進入店內直接走上閣樓,至事故發生時,未見其走出商鋪。
12時06分,杭倩敏(10歲,S85商鋪皇家眼鏡店店主杭艷女兒)身穿白色T恤、雙肩牛仔連衣裙離開皇家眼鏡店走進三好汽配經營部。事發時,杭倩敏在三好汽配經營部辦公休息區內寫作業。
2.事發經過。
?。?)8月8日上午,牛鋼占發現五菱宏光面包車存在動力乏力、發抖問題,于是到三好汽配經營部更換點火線圈。當天20時,牛鋼占又向華小兵反映面包車啟動存在故障,華小兵安排汽修工陳杰到場檢查,發現車輛油箱進水,需要拖至汽配經營部內清洗油箱和油路。
(2)8月9日9時30分,牛鋼占將面包車拖至三好汽配經營部。華小兵指揮將車輛停放在商鋪門口的升降機平臺上,并安排李新添檢查維修,隨后與牛鋼占、陳杰到附近的新一佳超市地庫搬運輪胎。10時42分,李新添將面包車油箱汽油導入一個軍綠色鐵質油桶(容量20升)和三個鐵質機油桶(容量各4升)后開始拆卸油箱,并將油箱放置在商鋪滴水線前1米的地面上。
12時29分,陳杰運回30條新輪胎。為騰空位置堆放輪胎,李新添又將油箱擱置到商鋪滴水線左前方位置的紅色塑料桶(以下簡稱“塑料桶”)的桶口上,運回的輪胎在騰空位置上被堆成并列兩排,每排高度達2.5米(見圖4)。
12時31分,陳杰將油箱放置于地面,與李新添一起抬動油箱并將剩余的汽油(約2升)倒入塑料桶,之后發現塑料桶內汽油漏出,于是陳杰雙手挪動并提起塑料桶,李新添用手去堵桶底時出現爆燃前閃光。當時陳杰身處商鋪門口內側,李新添在商鋪門口外側,爆燃產生的火焰將兩人隔開,火勢瞬間蔓延至商鋪內(見圖5)。

(二)應急救援及現場處置情況。
1.消防救援及應急疏散情況。火災發生后,信義管理處工作人員、周邊商鋪員工及過往群眾積極參與滅火和疏散救援。12時32分,周邊商鋪人員被及時疏散;12時33分,市民劉先生第一時間撥打119報警;12時37分,周圍群眾組織連接第一支水槍出水滅火;12時38分,信義管理處工作人員組織連接第二支水槍出水滅火。由于火勢和濃煙過大,大火未能及時撲滅。
12時34分,深圳消防119指揮中心接警后,立即調派4個中隊、3個專職隊及7個小型消防隊共29輛消防車、152名消防指戰員到達現場處置;12時39分,羅崗社區專職消防隊率先到達現場,同一時間120救護車也到達現場參與救護;12時46分,布吉消防中隊到達現場并立即組織搜救滅火。此后,其他消防車輛陸續到達并參與救援。14時07分,明火基本被撲滅;截至16時01分,現場共搜救出4名被困人員,經120醫護人員現場確認均無生命體征;17時30分,火災現場清理工作結束。
2.應急處置情況。
?。?)市委、市政府應急處置情況。事故發生后,市委、市政府高度重視,立即啟動應急響應。市委書記王偉中、市長陳如桂、常務副市長劉慶生接到報告后立即作出批示。14時30分,市應急管理局局長王延奎帶領有關部門負責人到達事故現場,組織開展應急救援和搶險工作。
?。?)龍崗區委、區政府應急處理情況。事故發生后,龍崗區立即啟動應急響應。龍崗區委書記張勇、原常務副區長劉智勇第一時間趕到現場組織指揮滅火救援工作,并成立現場指揮部。根據現場情況和有關預案,現場指揮部迅速確定由市消防救援支隊龍崗大隊快速研判火情和查清被困人員情況,制定救援方案。龍崗區應急管理局、龍崗區交通運輸局、布吉街道辦等部門接報后均第一時間趕往事故現場,全力協助滅火救援工作,同時做好應急處置和信息上報。龍崗公安分局負責現場管控、警戒,協同交警大隊做好周邊交通疏導;布吉街道辦負責做好附近小區居民、住戶疏散及死亡人員家屬接待、安撫和善后處置工作。
3.應急評估情況。綜上,此次事故信息報送渠道暢通,信息流轉及時,應急響應迅速,響應程序正確,未發現救援指揮、工作人員失職、瀆職現象。
(三)事故損失及善后處理情況。
1.死亡人員情況(4人)。
?。?)袁紅霞,女,48歲,漢族,廣州增城人。
(2)華佳齡,女,12歲,漢族,湖北浠水人。
?。?)陳杰,男,22歲,漢族,湖北浠水人。
(4)杭倩敏,女,10歲,漢族,江蘇海安人。
2.直接經濟損失及善后處理情況。
事故調查組依據《企業職工傷亡事故經濟損失統計標準》(GB6721-1986),核定事故直接經濟損失384.6萬元人民幣。善后處置情況如下:
一是事故發生后,在市、區兩級政府支持和幫助下,布吉街道辦第一時間成立由主要領導為組長的火災事故善后處置領導小組,組織司法、維穩、公安及社區工作站等部門有序開展善后工作,開展遇難者家屬心理安撫和情緒疏導,及時化解各級矛盾,積極解決事故賠償協商和經濟損失評估等事宜。
二是積極為遇難者家屬提供法律等援助,由布吉街道辦協調社區平安志愿者聯合會先行墊付陳杰、杭倩敏、華佳齡等遇難者善后費用。
三是事故相關賠償事宜。S88號商鋪(格力空調店)、S87商鋪(德佑房產店)損壞的門牌和廣告標識由華小兵負責恢復原貌,目前兩店已恢復正常營業。S90號商鋪(7-11便利店)損失由華小兵籌集資金進行賠付。
目前,善后工作得到妥善處置,最大限度地降低此次事故造成的影響,遇難者家屬情緒穩定,商戶經營恢復正常,未出現影響社會穩定的情況。
三、火災現場及技術勘查情況
?。ㄒ唬┗馂默F場勘查情況。
一層:商鋪兩邊門柱木板過火,碳化程度東重西輕;門廊中部木板缺失,兩側木板殘留;商鋪內東西兩側墻壁及墻面瓷磚被燒損,批蕩脫落,燒損程度東重西輕;閣樓樓梯被燒損、煙熏;卷閘門中部過火變形;商鋪門口南側瓷磚地面多個燒坑,裸露水泥地面呈液體流淌痕跡。商鋪內兩側依次擺放的充氣機、拆胎機等修車設備被燒損煙熏,氧化銹跡明顯;玻璃門碎裂,辦公桌椅和機油柜等物品被燒損、煙熏。整體燃燒痕跡呈現南重北輕。
二層:閣樓四周墻面及物品均有煙熏痕跡,未見過火;南側鋼質框架大面積被燒損、彎曲變形、垂落至一層,部分橫梁缺失,缺失程度東重西輕。
五菱宏光面包車:車頭朝南,整車過火,車身框架裸露;主駕駛位側面車身大面積氧化銹跡,副駕駛位側面車身氧化銹跡較輕;車輛燃燒痕跡頭重尾輕。
?。ǘ┪镒C提取及鑒定情況。
2019年8月12日,事故調查組技術組委托廣東震華痕跡司法鑒定所對事故起火等原因進行鑒定分析。
物證現場提?。狠喬?條、汽車油箱1個、滿油品綠色鐵質油桶1個、疑似燃油濾清器2個、電焊機1個、電排插1個、現場煙漬、地面碳殘渣、殘留文件單據若干、商鋪CAM03號監控視頻原始數據一份。
2019年11月12日,廣東震華痕跡司法鑒定所反饋鑒定意見:綠色鐵質油桶內油品為汽油,屬《危險化學品目錄(2015年版)》中的危險化學品,序號1630,CAS號86290-81-5;地面碳渣殘留中檢測出汽油成份,結合當天氣象條件及工人作業時間,事故發生前泄漏、灑落于地面的汽油可在局部區域達到爆燃下限,經視頻鑒定測算,汽油蒸氣爆燃后火焰傳播速度可達17米/秒;煙密度試驗表明,輪胎混合汽油燃燒后可產生一氧化碳和二氧化氮等有毒有害氣體,其中30毫升汽油與75克輪胎完全燃燒,產生一氧化碳、二氧化氮濃度峰值最大,分別為百萬分之660.105(6分鐘)和百萬分之435.034(16分鐘)。
(三)天氣條件及周邊環境情況。
根據深圳市國家氣候觀象臺深圳國家基本站以及布吉自動氣象觀測站記錄:2019年8月9日11—13時,平均溫度34.4度,最高氣溫35.2度(出現時間12時38分),地面最高溫度47度(出現時間12時41分)。事發當時大量泄漏汽油灑落至地面周邊,高溫促使塑料桶周邊區域的汽油蒸氣與空氣快速混合并達到爆燃下限。
四、事故商鋪實際經營情況
?。ㄒ唬┦鹿噬啼佡Y質證照情況。
三好汽配經營部自2004年4月16日設立至今進行了三次商事登記變更。第一次(2010年3月29日):換照、注冊號/注冊號升級變更。第二次(2013年5月30日):證照有效期限、商事登記換照變更。第三次(2018年8月24日):一般經營、一照一碼升級、許可信息、許可經營、地址變更;增加了四輪定位、換機油、輪胎修補許可經營項目,經營場所由S90號變更為S89號。
調查證實,三好汽配經營部負責人華小兵在2008年9月至2018年7月期間,實際經營中增加了機動車維修項目,未向道路運輸管理機構申請辦理《道路運輸經營許可證》2;2018年8月24日,華小兵在商事登記中增加了四輪定位、換機油、輪胎修補的經營項目,至事發時止未向道路運輸管理機構申請備案3。
?。ǘ┦鹿噬啼伾a經營情況。
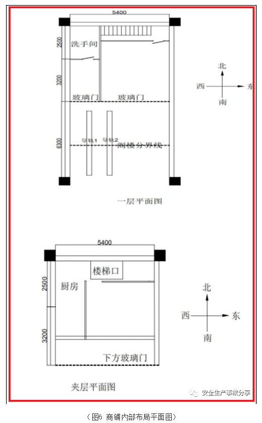
1.商鋪經營布局情況。2008年,華小兵在商鋪內搭建鋼質閣樓,將商鋪分成上、下兩層。首層店面被玻璃間隔成面積為31平方米的辦公休息區(含衛生間)和面積為34平方米的設備配件區。衛生間及玻璃門進出通道寬度為0.5米(見圖6)。


二層為閣樓,閣樓長寬高分別為9.6米、5.4米和1.75米,設有廚房和生活區,其中廚房由華小兵于2017年建成。閣樓東側依次擺放辦公桌、椅子衣物等生活物品;西側有消毒柜、冰箱、廚臺、灶臺(電磁爐)等生活設施。
事發時,商鋪通風窗和逃生窗均處于上鎖狀態。
2.經營歷史情況。2003年7月,華小兵租下S90號商鋪(即“7-11”便利店,面積78.14平方米),2004年4月注冊成立“三好汽配經營部”,由夫妻兩人共同經營,主要銷售輪胎和汽配件。2004年8月,又租下S89號商鋪,兩店同時經營。2014年5月,因S90號商鋪更換業主和租金上漲等原因,華小兵終止租用S90號商鋪,保留租用S89號商鋪作為“三好汽配經營部”的經營場所。
3.開展機動車維修情況。
?。?)維修設備添置情況。經調查證實,三好汽配經營部2003年安裝升降機一部;2008年9月新增汽車四輪定位升降平臺(舉升機)、拆胎機和汽車動平衡機,開始經營輪胎修補和動平衡業務;2013年新增可移動升降機一部;2014年配備四輪定位儀一部,開展四輪定位業務。
?。?)項目經營情況。經調查證實,2008年9月,S89號商鋪完成重新裝修后,開始在店內開展輪胎銷售及維修業務,新增拆胎機和汽車動平衡機,開展輪胎修補和動平衡業務;同時進行剎車片、汽車大燈、雨刮器及電瓶(汽車蓄電池)等汽車零配件更換和維修業務。項目經營通常由三好汽配經營部通過“微信”或“收錢吧”支付貨款及收取機動車維修費。
(3)工人招聘情況。經調查證實,該事故商鋪招聘的員工服務時間短且更換頻繁,一般情況下聘有1至2名員工,多時聘有3至4名員工。除本次事故涉及的李新添和陳杰2名員工外,曾入職三好汽配經營部的部分員工有:劉衛軍(男,40歲,漢族,江西新余人,工作時間:2002年至2007年)、周?。?,23歲,漢族,湖北黃岡人,工作時間:2018年1月至10月)
?。?)周邊群眾情況反映。據周邊群眾陳述,結合部分周邊群眾維修經歷,走訪調查結果證實三好汽配經營部存在汽車維修、配件和輪胎更換、常規保養等服務。相關證據均已收集固定。
?。?)車主維修統計及情況反映。事故調查組對249名車主進行調查詢問,確認2008年以來在三好汽配經營部有維修行為的車主有158人(其中2008—2015年73人,2016年19人,2017年29人,2018年25人,2019年12人)。據部分維修車輛的車主證實,三好汽配經營部維修內容包括:車窗玻璃升降機維修、零配件更換和輪胎修補。相關證據均已收集固定。
調查認定:自2008年以來,三好汽配經營部長期存在從事機動車維修的事實行為。
五、相關單位安全生產管理情況
?。ㄒ唬┤闷浣洜I部安全生產組織情況。
1.管理人員。
華小兵:三好汽配經營部負責人。
2.存在問題。
?。?)安全管理制度缺失。三好汽配經營部未制定汽車維修管理制度和安全操作規程,未將安全操作規程明示張貼。違反《中華人民共和國安全生產法》第十八條第二項的規定4。
?。?)安全教育培訓缺失。三好汽配經營部未制定安全教育培訓計劃,未對員工開展安全教育和培訓。截止事發時,李新添、陳杰未接受安全生產教育培訓,違反《中華人民共和國安全生產法》第十八條第三項5和第二十五條第一款的規定6。
?。?)隱患排查和治理缺失。三好汽配經營部未對經營場所進行安全生產檢查和隱患排查,未發現和消除經營場所逃生窗防盜網違規上鎖和違規存放大量輪胎、雜物等可燃物品的安全隱患,違反《中華人民共和國安全生產法》第十八條第五項的規定7。
(4)風險辨識和管控缺失。三好汽配經營部未對故障車輛油箱清洗作業過程中存在的危險因素進行辨識并制定相應的防范措施和工作制度。
?。?)非法經營。華小兵從2008年9月至事發時,長期非法經營汽車維修經營項目,違反《中華人民共和國道路運輸條例》(2016版)第三十九條8和《中華人民共和國道路運輸條例》(2019版)第三十九條第二款的規定9。
?。ǘ┥钲谑泻穗娢飿I有限公司管理情況。
1.管理人員情況。
周德華:信義假日名城管理處主要負責人。
林勇杰:信義假日名城管理處安全主管。
2.存在問題。
深圳市核電物業有限公司未對三好汽配經營部長期占用物業公共部位經營汽車維修項目進行勸阻、制止和報告區政府相關主管部門。
(三)政府部門安全監管單位監督管理情況。
1.龍崗區消安委辦。
根據《龍崗區消防體制改革過渡期間消防工作暫行管理規定》(深龍消防委〔2019〕7號),龍崗區消安委辦負責研究、統籌、協調和督促、指導全區消防工作;協調組織各街道、各部門貫徹落實國家消防法律法規和上級關于消防工作的部署;對派出所履行《廣東省公安廳關于公安派出所消防監督檢查的工作規定》(粵公通字〔2011〕140號)情況定期開展督導檢查和業務指導;督促指導各成員單位履行消防工作職責。但龍崗區消安委辦未定期落實每月通報全區消防管理信息化工作情況;督促、指導全區消防工作不力,未定期督導、檢查羅崗派出所對三好汽配經營部進行日常消防監督檢查工作。
2.市交通運輸局龍崗管理局。
根據《中共深圳市委機構編制委員會辦公室關于市交通運輸局所屬單位有關機構編制事項的通知》(深編辦〔2019〕48號)規定,市交通運輸局龍崗管理局負責承擔轄區內機動車維修日常監督管理工作。但2008年9月至事發時,市交通運輸局龍崗管理局對布吉交管所監管工作督促檢查不到位,對布吉交管所未納管三好汽配經營部的工作存在監管失察。
3.市交通運輸局龍崗管理局布吉交管所。
根據《龍崗交通運輸局關于調整部分內下設機構工作職責及業務的通知》(深交龍崗〔2018〕125號)規定,布吉交管所負責轄區內行業安全監管、協助執法工作,承擔對維修企業的監管和三類維修企業的許可管理等職責。但2008年9月至事發時,對三好汽配經營部長期存在非法經營機動車維修業務監管不力。
4.市交通運輸行政執法支隊龍崗大隊。
根據《市交通運輸局關于執法支隊內下設機構設置的通知》(深交字〔2019〕290號)規定,市交通運輸行政執法支隊龍崗大隊負責龍崗轄區的交通運輸綜合執法工作,組織開展日常巡查,依法對相關交通運輸市場主體及其從業人員的違章違規經營行為進行查處,對違法行為實施行政強制、行政處罰,及時糾正違章違法行為。但2008年9月至事發時,市交通運輸行政執法支隊龍崗大隊未對三好汽配經營部組織開展執法檢查,未及時發現和查處三好汽配經營部長期非法經營機動車維修行為。
5.市交通運輸行政執法支隊龍崗大隊布吉中隊。
根據《深圳市交通運輸行政執法支隊龍崗大隊關于執法小組領導分工及崗位職責的情況》規定,布吉中隊負責承擔布吉、吉華片區交通運輸的綜合執法工作。但2008年9月至事發前,市交通運輸行政執法支隊龍崗大隊布吉中隊未對三好汽配經營部組織開展執法檢查,未及時發現和查處三好汽配經營部長期非法經營行為。
6.布吉街道消安委辦。
根據《轉發區消安委會關于明確“三小”場所隱患排查整治工作職責分工的通知》(龍布消安委辦〔2017〕10號)規定,布吉街道消安委辦負責轄區“三小”場所消防安全統籌協調工作。但布吉街道消安委辦未按照消防管理信息系統中規定“三小”場所的時限要求開展監督檢查和復查,落實轄區內“三小”場所消防安全檢查工作不到位,屬地監管工作不力。
7.布吉街道羅崗社區工作站。
根據《龍崗區社區工作站安全管理職責暫行規定》(深龍委辦〔2012〕30號)的規定,羅崗社區工作站負責協助政府有關部門開展“三小”場所的安全檢查,及時發現安全隱患,并積極監督指導隱患單位做好整改工作。但羅崗社區工作站落實轄區“三小”場所安全巡查工作不到位,未及時發現并上報三好汽配經營部存在長期非法經營的安全隱患。
8.布吉街道羅崗社區網格管理服務站。
根據《龍崗區網格員隊伍管理標準化工作規范》(深龍綜治委〔2017〕6號)的規定,羅崗社區網格管理服務站負有落實信息采集任務的職責。但羅崗社區網格管理服務站未準確采集并上報三好汽配經營部的相關信息,未及時發現三好汽配經營部存在非法經營機動車維修業務的安全隱患。
9.羅崗派出所。
根據《廣東省公安廳關于公安派出所消防監督檢查的工作規定》的規定,公安派出所應對機動車修理業每年實施日常消防監督檢查不少于一次。但2008年至事發時,羅崗派出所未對三好汽配經營部開展過消防監督檢查。
六、事故原因和性質
經現場勘驗、當事人現場指認、調查詢問、視頻分析、物證提取、檢驗鑒定、氣象條件等綜合分析,查明事故原因如下:
?。ㄒ唬┲苯釉颉?/strong>
維修工違規操作。李新添、陳杰將汽車油箱內剩余的約2升汽油倒入塑料桶內時產生靜電,塑料桶泄漏的汽油灑落至地面。由于作業時地表高溫,加劇了汽油的揮發并產生汽油蒸氣,作業區域內的汽油蒸氣與空氣形成易燃性混合氣體。李新添、陳杰在移動塑料桶過程中,靜電放電產生靜電火花導致汽油蒸氣爆燃,違反了《液體石油產品靜電安全規程》(GB13348-2009)第4.6.2條:“不應使用絕緣性容器加注汽油、煤油等”的規定。
?。ǘ╅g接原因。
1.三好汽配經營部非法經營,安全管理不到位,未落實安全生產主體責任。
具體表現:
?。?)長期存在非法經營行為。經查,自2008年以來,三好汽配經營部長期存在從事機動車維修的事實行為,未按照《中華人民共和國道路運輸條例》的有關規定申辦機動車維修業務許可和備案;
(2)安全生產教育和培訓缺失。未按照《中華人民共和國安全生產法》相關規定組織制定并實施本單位安全生產教育和培訓計劃,致使該店從業人員不具備必要的安全生產知識和基本的安全操作技能,安全生產意識淡薄,在對機動車油箱清洗作業時未能進行風險辨識并制定有效的安全防范措施;
?。?)安全管理制度缺失和現場組織管理混亂。未按照《汽車維修業開業條件》要求建立并實施與其維修作業內容相適應的安全管理制度和安全保護措施。三好汽配經營部未能建立健全汽油等易燃易爆物品使用與臨時存儲安全管理規程。該商鋪現場組織管理混亂,經營場地狹小,違規開展清洗油箱和油路等機動車維修作業,維修設備和汽配物品擺放雜亂,通風窗和安全窗均違規上鎖,商鋪出入口作為唯一進出通道卻因擺放大量輪胎及其他物品而未能保持暢通;
?。?)商鋪內可燃物數量眾多,火災荷載大。事故現場堆放了大量汽車輪胎和雜物等可燃物品,火災發生時大火快速發展到猛烈階段,輪胎與汽油蒸汽在高溫條件下混合燃燒,產生大量一氧化碳和二氧化氮等有毒、有害濃煙氣體,短時間內迅速擴散至整個商鋪空間,影響人員疏散逃生,并給滅火救援工作帶來嚴重影響。
2.小區物業安全管理工作不到位。深圳市核電物業有限公司信義假日名城管理處組織的安全周檢和巡查不到位,檢查走過場,安全管理工作流于形式,對三好汽配經營部長期占用物業公共部位的行為管理不到位。
3.多政府部門監管不力。
?。?)市交通運輸局龍崗管理局及相關單位未及時發現并查處三好汽配經營部長期存在非法經營機動車維修項目的行為。
(2)龍崗區消安委辦未定期對消防管理信息化工作情況進行通報,督促、指導全區消防工作不力。
?。?)布吉街道消安委辦對羅崗社區“三小”場所消防安全隱患排查工作的統籌、協調、督促不力。
?。?)羅崗派出所對三好汽配經營部未開展消防監督檢查。
(三)事故性質。
經事故調查組認定,深圳市龍崗區布吉街道三好汽配經營部“8·9”火災事故是一起較大生產安全責任事故。
七、對事故責任單位和責任人員的處理建議
(一)有關責任單位和責任人員處理建議。
1.建議給予追究刑事責任人員(2人)。
三好汽配經營部負責人華小兵與維修工人李新添嚴重違規操作,造成重大責任事故,行為涉嫌重大責任事故罪,公安機關已對上述2人采取強制措施。建議司法機關對華小兵、李新添2人提起訴訟,依法予以懲處。此外,另1名責任人陳杰在事故中死亡,免于追究刑事責任。
2.建議由深圳市物業管理協會處理的單位(1家)。
深圳市核電物業有限公司作為物業管理單位,對管轄的公共區域檢查、監管不到位,對三好汽配經營部長期占用物業公共部位維修車輛、擺放維修工具等行為未予以勸阻、制止并及時報告區政府相關主管部門,違反了《〈深圳經濟特區物業管理條例〉實施若干規定》第五十一條第四項之規定10,建議由深圳市物業管理協會依據《〈深圳經濟特區物業管理條例〉實施若干規定》第七十二條第四項11對其進行處理。
3.建議企業內部處理的責任人員(2人)。
(1)深圳市核電物業有限公司信義假日名城管理處負責人周德華,主持管理處全面工作,未認真履行安全管理職責,對信義假日名城物業管理工作督促、檢查不力,建議深圳市住房和建設局責成深圳市核電物業有限公司依據公司管理規定對其進行處理。
(2)深圳市核電物業有限公司信義假日名城管理處安全主管林勇杰,對三好汽配經營部長期占用物業公共部位進行機動車維修行為未進行勸阻、制止并報告區政府相關的主管部門,日常巡查管理工作不力,建議深圳市住房和建設局責成深圳市核電物業有限公司依據公司管理規定對其進行處理。
(二)有關政府部門和公職人員問責建議。
對于在事故調查過程中發現的有關政府單位及有關部門的公職人員履職方面的問題線索及相關材料,已移交市紀委監委相關調查組。對有關人員的黨政紀處分和有關責任單位的處理意見,由市紀委監委提出。
八、事故防范措施建議
?。ㄒ唬┤胬迩濉叭 眻鏊O管部門權責清單,倒逼生產經營單位嚴格落實安全生產主體責任。
1.本次火災事故,因事發商鋪三好汽配經營部存在汽車零配件銷售、機動車維修等業務,經營范圍變更又適逢《道路運輸經營許可證》等行政許可事項取消的節點,以致于出現行業主管部門不明晰,安全隱患排查治理不徹底,充分暴露了政府各級安全監管部門對“三小”場所存在多頭監管、權責不清的問題,安全監管存在盲區和死角,責任落實不到位?;诖嬖谏鲜霭踩O管問題,建議全面厘清政府各監管部門對于“三小”場所的權責清單,規范行業管理和屬地管理,明確、細化安全監管職責分工,倒逼生產經營單位嚴格落實安全生產主體責任,消除安全隱患。
2.各區(新區)、各部門要嚴格按照2018年7月1日起施行的《深圳市生產經營單位安全生產主體責任規定》(市政府令第308號),結合各轄區、各行業領域“三小”場所的實際情況,制定“三小”場所安全標準和執行指引,強化“三小”場所安全管理,規范“三小”場所日常操作,督促“三小”場所業主、經營者、員工落實主體責任,切實消除各類安全隱患。
(二)加大政府監管力度,實現行業監管和屬地監管同頻共振。
1.本次事故的發生,主要源于事發商鋪三好汽配經營部未達到《中華人民共和國道路運輸條例》規定的汽車維修業開業條件、未按照《中華人民共和國道路運輸條例》規定取得《道路運輸經營許可證》,長期違法從事機動車維修經營業務。據不完全統計,目前深圳有機動車維修門店近萬家,其中有數量不少的無證路邊店、攤點店等。這些無證維修門店經營者普遍安全生產意識淡薄,維修作業人員技術水平參差不齊、作業場所比較簡陋、維修設備低劣陳舊,存在極大的安全隱患。交通運輸管理部門作為機動車維修業的行業主管部門,應嚴格落實市委市政府有關安全生產的工作目標,對于從事機動車維修業的生產經營單位,無論是否具備汽車維修業開業條件、是否取得行政許可或經營備案都進行全面排查,建立基礎臺賬,列入年度執法計劃,納入日常監管范疇,嚴格按照《機動車維修管理規定》《汽車維修業開業條件》等規定督促從事機動車維修業的生產經營單位建立健全與其維修作業內容相適應的安全管理制度和安全保護措施,建立完善廢油、廢液、廢水、廢氣等易燃有害物質的集中收集、安全處理制度并有效執行,務必做到“管行業必須管安全”、“管業務必須管安全”、“管生產經營必須管安全”,強化監管力度,壓實責任落實,有效排查消除安全隱患。
2.各區(新區)要深刻吸取事故教訓,建立健全“黨政同責、一崗雙責、齊抓共管”的安全生產責任體系,落實安全發展,堅持安全第一,切實解決好安全生產在地方經濟建設和社會發展中的“擺位”問題,堅守安全生產“紅線”,嚴格落實屬地安全生產監管責任。各街道、社區要加強基層執法力量,提高安全監管人員的專業素質,強化責任意識,提高履職能力,尤其是提高一線執法人員和社區網格人員的履職能力,要將執法人員和社區網格人員的履職能力培訓納入年度培訓計劃,切實提高執法人員和社區網格人員檢查發現和整治排除安全隱患的能力。針對“三小”場所,各區(新區)要加強對消防救援大隊和公安派出所的組織領導和統籌協調,確保消防安全工作無縫銜接,避免出現監管空白。
只有實現行業監管和屬地監管同頻共振,才能真正做到安全監管到位、安全投入到位、安全培訓到位、企業主體責任落實到位。
?。ㄈ﹥灮谰仍疽巹澖ㄔO頂層設計,強化基層消防救援力量。
1.消防救援站建設作為公共配套的基礎設施,屬重大民生工程,目前僅將消防救援站建設納入績效考核,而未將消防救援站投入使用納入考核指標。同時,各區(新區)在規劃建設消防救援站時存在僅有建設規劃,未做投入使用的人員編制、行政經費、后勤物資保障等配套項目規劃,導致龍崗區出現已經竣工移交的消防救援站長期無法正常投入使用。為了解決消防救援站建設存在的上述問題,建議各區(新區)優化消防救援站規劃建設頂層設計,做好消防救援站建設與所在轄區政府在人、財、物方面的綜合統籌,保證消防救援站不僅要建好,還要能及時投入使用,在關鍵時刻切實發揮應有的救援作用。
2.推動各街道社區小型消防站的發展建設,強化基層一線滅火救援力量,不斷提高社區小型消防站消防隊員滅火救援戰斗力,滿足社區火災撲救和應急救援需求,緩解轄區內消防中隊距離較遠、出警時間長的問題。社區小型消防站通常由政府采用購買服務的形式補充基層消防救援力量,因人員體制和薪酬制度問題,導致社區小型消防站人員流動快,人才難以留住。建議由各區政府加強對社區小型消防站專職消防員的培養,提高薪酬待遇,打通晉升通道,為基層留住專職消防人才提供必要條件。
?。ㄋ模┭芯拷ㄖ讓由虡I形態負面清單,規范物業行業安全管理。
住房建設部門應抓緊研究建筑底層商業形態負面清單,將建筑底層商業形態分為禁止類、限制類、淘汰類三大類別,引入負面清單管理模式,建立建筑底層商業形態負面清單分類分級管理系統,根據生產經營規模、管理水平、技術水平和危險因素等條件,采用“按類分級、據業分類、依類依級監管”的負面清單管理模式,在分類分級的基礎上,對企業在監管頻次、監管內容等方面實行差異化監管,提高監管工作的針對性和有效性。全市物業管理企業應深刻吸取事故教訓,嚴格落實《深圳經濟特區物業管理條例》和《<深圳經濟特區物業管理條例>實施若干規定》的有關規定,結合物業管理行業(領域)實際情況,以安全生產標準化建設評定標準為基礎,細化隱患排查標準,明確每項安全生產工作的具體標準和要求,使物業管理人員知道“做什么、怎么做”,實現安全隱患排查治理有章可循、有據可依,確保工作有部署、抓落實、見實效,提高物業安全管理水平。
(五)加強消防安全宣教培訓力度,提高全民消防安全防范意識。
各級政府、各部門要綜合運用科技手段和網絡媒體拓寬宣傳途徑,營造有利的社會輿論氛圍,大力開展消防安全宣傳教育,結合火災事故案例進行報導,深入剖析事故原因及其中的教訓,結合消防宣傳“五進”活動,認真組織群眾了解消防安全知識,正確認識火災危險性,提高發現消防安全隱患問題的能力,普及防火滅火常識以及逃生自救知識,學會報火警、辨別疏散路線和安全出口,掌握撲救初起火災和安全逃生的基本技能。
